情報更新日:2025年07月25日/広告有効期限:なし
表示閲覧回数(過去30日間):19
お急ぎの方はお電話からお気軽にどうぞ!
089-913-2329 営業時間 / 9:00〜18:00 定休日 / 日曜、年末年始
>物件詳細情報
| 基本情報 | |
|---|---|
| 物件番号 | 10007805805 |
| 店舗形態 | 店舗, 事務所 |
| オススメ業種 | 物販関係, サービス業, 事務所, 塾・学校・教育関係 |
| 物件名 | 松山ガーデンビル 2階北 |
| 物件の状態 | 空き |
| 引越し時期 | 相談 |
| 契約形態と期間 |
定期契約期間:5年間再契約:不可 |
| 所在地・交通 | |
|---|---|
| 所在地 | 愛媛県松山市二番町3-7-14 |
| 交 通1 | 伊予鉄3系統大街道駅 徒歩3分 |
| 交 通2 | - |
| 賃料 | |
|---|---|
| 賃 料 | 560,010円(税込) |
| 敷 金 |
6ヶ月 |
| 共益費・管理費 | 74,668円(税込) |
| その他 | |
|---|---|
| 備考 | セミスケルトンになります ※飲食店及び水、電気の使用量の多い業種は不可 水道代は検針請求です ゴミ処理費・町内会費は借主負担 借家人賠責・保証会社加入要 |
| 建物 | |
|---|---|
| 建物構造 | 鉄骨造 |
| 建物階建て |
地上4階 |
| 施工年月 | 2014(平成26)年 12月 |
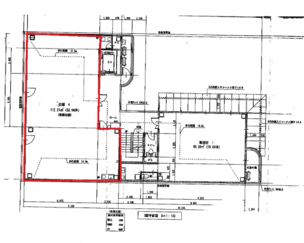
| 募集物件の階数 | 地上 2階 北号室 |
| 契約面積 | 112.21m2(33.94坪) |
| 用途地域 | 商業地域 |
| 設備 | |
|---|---|
| エレベータ | 有 |
| エアコン | 有 |
| トイレ | 有/共用 |
| 照明設備 | 有 |
| 駐車場 | |
|---|---|
| 状 況 | 無し |
| 取引情報 | |
|---|---|
| 取引態様 | 媒介 |
| 客付 | 不可 |
この物件をチェックした人はこんな物件も見ています
- 古川西の病院・薬局のあと1階です!近隣にスーパー・ドラッグストアなど集客施設あり!インターへもアクセス便利な立地です!

愛媛県松山市古川西2-3-18
226.80m2(68.61坪)
377,300円(税込)
- 古川西の病院・薬局のあと!近隣にスーパー・ドラッグストアなど集客施設あり!インターへもアクセス便利な立地です!駐車場6台込み!

愛媛県松山市古川西2-3-18
300.10m2(90.78坪)
548,735円(税込)
- 勝山電停そば!大型のオフィスビルです!

愛媛県松山市一番町1-15-2
71.67m2(21.68坪)
賃料未定
- マンション1階のテナントです!

愛媛県松山市小坂4-6-42
45.13m2(13.65坪)
84,700円(税込)
- 道後温泉本館・子規記念博物館を結ぶ道沿いにある希少物件です!

愛媛県松山市道後湯之町-6-27
137.50m2(41.59坪)
781,000円(税込)
今日チェックした物件
お急ぎの方はお電話からお気軽にどうぞ!
089-913-2329 営業時間 / 9:00〜18:00 定休日 / 日曜、年末年始


089-913-2329














089-913-2329