情報更新日:2026年01月09日/広告有効期限:なし
表示閲覧回数(過去30日間):4
お急ぎの方はお電話からお気軽にどうぞ!
089-913-2329 営業時間 / 9:00〜18:00 定休日 / 日曜、年末年始
>物件詳細情報
| 基本情報 | |
|---|---|
| 物件番号 | 10007806074 |
| 店舗形態 | 店舗(飲食店可), 店舗 |
| オススメ業種 | 重飲食, 軽飲食 |
| 物件名 | MUKAI BLDG №6 5階 |
| 物件の状態 | 空き |
| 引越し時期 | 相談 |
| 契約形態と期間 |
普通 |
| 所在地・交通 | |
|---|---|
| 所在地 | 愛媛県松山市二番町2-4-10 |
| 交 通1 | 伊予鉄1系統大街道駅 徒歩3分 |
| 交 通2 | - |
| 賃料 | |
|---|---|
| 賃 料 | 434,808円(税込) |
| 敷 金 |
6ヶ月 |
| その他 | |
|---|---|
| 備考 | セキュリティー有り 内装を含む改修工事・役所・消防等申請はすべて借主様負担 |
| 建物 | |
|---|---|
| 建物構造 | 鉄骨造 |
| 建物階建て |
地上6階 |
| 施工年月 | 2015(平成27)年 11月 |
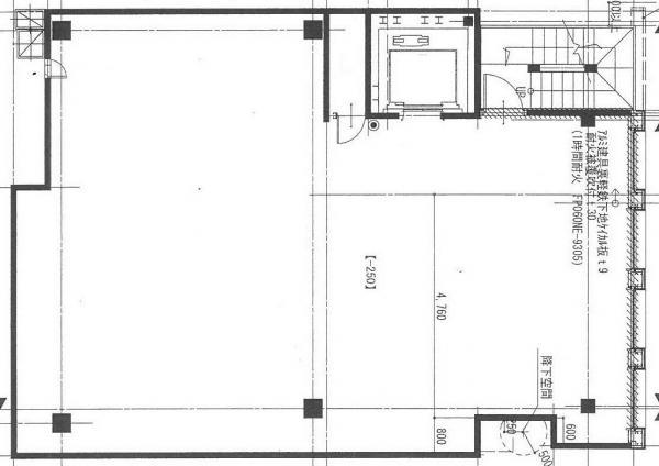
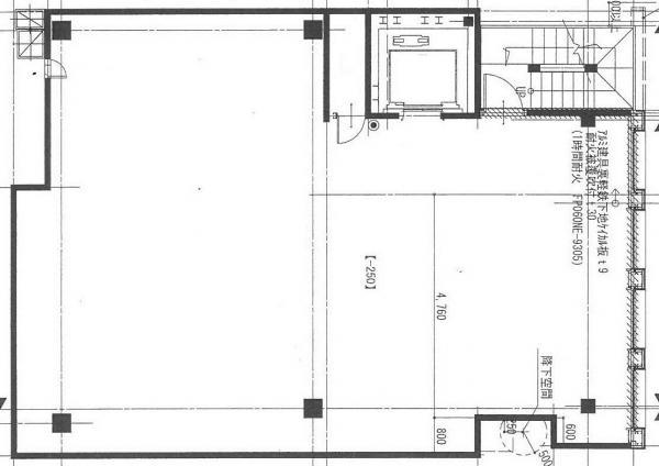
| 募集物件の階数 | 地上 5階 |
| 契約面積 | 108.89m2(32.94坪) |
| 用途地域 | 商業地域 |
| 設備 | |
|---|---|
| エレベータ | 有 |
| 利用時間 | 24時間 |
| 駐車場 | |
|---|---|
| 状 況 | 無し |
| 取引情報 | |
|---|---|
| 取引態様 | 媒介 |
| 客付 | 可 |
この物件をチェックした人はこんな物件も見ています
- 此花町1階テナントです!

愛媛県松山市此花町3-15
52.17m2(15.78坪)
82,500円(税込)
- 小坂交差点すぐそば、環状線沿いの1階テナントです!

愛媛県松山市枝松5-3-31
70.41m2(21.30坪)
164,010円(税込)
- 旧国道沿い、1階、前面に駐車場2台あり!

愛媛県松山市北藤原町4-5
99.17m2(30.00坪)
132,000円(税込)
- ひめぎんホールの東隣で1階テナントです!道後方面お探しの方におすすめです!

愛媛県松山市道後町(1、2丁目)2-3-24
40.70m2(12.31坪)
132,000円(税込)
- フライブルク通り(環状線)沿いの2階テナントです!駐車場2台賃料込み!

愛媛県松山市南江戸3-9-21
69.97m2(21.17坪)
198,000円(税込)
今日チェックした物件
- 日の出町にある、大型オフィスビルの8階です!駐車場180台有り!
-

愛媛県松山市日の出町-7-8
187.89m2(56.84坪)
437,591円(税込)
- 中心部4階!カフェバー居抜きのテナントです!
-

愛媛県松山市三番町2-6-16
70m2(21.18坪)
218,900円(税込)
- 松山市中心部の繁華街に近く、一番町通り沿いのある大型オフィスビルの7階です!
-

愛媛県松山市一番町2-5-30
104m2(31.46坪)
253,000円(税込)
- 松山市中心部の繁華街に近く、一番町通り沿いのある大型オフィスビルの9階です!
-

愛媛県松山市一番町2-5-30
104m2(31.46坪)
253,000円(税込)
- 今治市のショッピングセンター内!雑貨店のあとです!
-

愛媛県今治市東村(丁目)1-14-2
478.34m2(144.70坪)
賃料未定
お急ぎの方はお電話からお気軽にどうぞ!
089-913-2329 営業時間 / 9:00〜18:00 定休日 / 日曜、年末年始


089-913-2329















089-913-2329