情報更新日:2026年03月18日/広告有効期限:なし
表示閲覧回数(過去30日間):80
お急ぎの方はお電話からお気軽にどうぞ!
089-913-2329 営業時間 / 9:00〜18:00 定休日 / 日曜、年末年始
>物件詳細情報
| 基本情報 | |
|---|---|
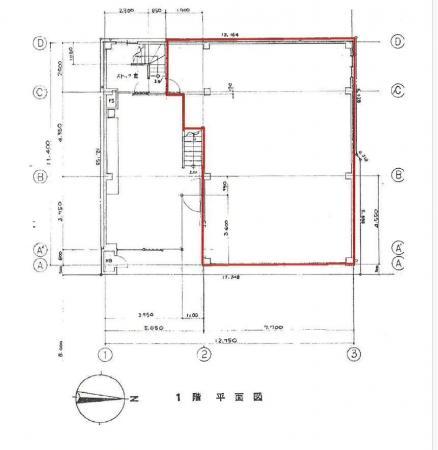
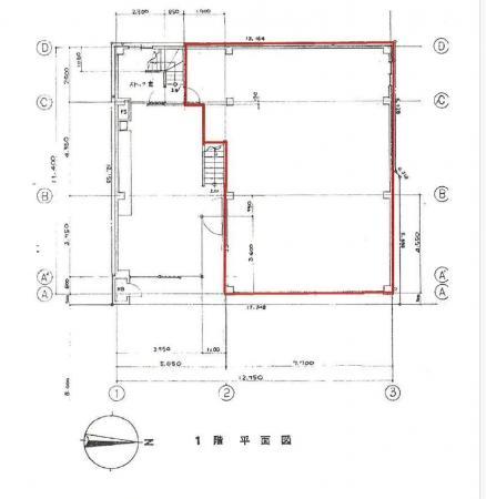
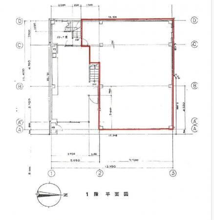
| 物件番号 | 10007806123 |
| 店舗形態 | 店舗(飲食店可), 店舗 |
| オススメ業種 | 重飲食, 軽飲食, 物販関係, サービス業 |
| 物件名 | ●千舟町5丁目店舗 1階北 |
| 物件の状態 | 空き |
| 引越し時期 | 相談 |
| 契約形態と期間 |
普通 |
| 所在地・交通 | |
|---|---|
| 所在地 | 愛媛県松山市千舟町5-1-7 |
| 交 通1 | 伊予鉄1系統松山市駅 徒歩4分 |
| 交 通2 | - |
| 賃料 | |
|---|---|
| 賃 料 | 495,000円(税込) |
| 敷 金 |
6ヶ月 |
| その他 | |
|---|---|
| 備考 | 家賃保証会社加入要 ※美容室NG |
| 建物 | |
|---|---|
| 建物構造 | 鉄骨造 |
| 建物階建て |
地上2階 |
| 施工年月 | 1988(昭和63)年 01月 |
| 募集物件の階数 | 地上 1階 北号室 |
| 契約面積 | 99.38m2(30.06坪) |
| 用途地域 | 商業地域 |
| 設備 | |
|---|---|
| トイレ | 有/専用 |
| 駐車場 | |
|---|---|
| 状 況 | 無し |
| 取引情報 | |
|---|---|
| 取引態様 | 媒介 |
| 客付 | 可 |
この物件をチェックした人はこんな物件も見ています
- 松山市駅から徒歩2分!内装も綺麗なエステ店跡の2階です!

愛媛県松山市湊町5-3-4
69.45m2(21.01坪)
187,000円(税込)
- 松山市一番町の繁華街にある物件!!

愛媛県松山市二番町1-11/8
270.15m2(81.72坪)
330,000円(税込)
- 道後温泉本館・子規記念博物館を結ぶ道沿いにある希少物件です!

愛媛県松山市道後湯之町-6-27
137.50m2(41.59坪)
781,000円(税込)
- 古川西の病院・薬局のあと!近隣にスーパー・ドラッグストアなど集客施設あり!インターへもアクセス便利な立地です!駐車場6台込み!

愛媛県松山市古川西2-3-18
300.10m2(90.78坪)
548,735円(税込)
- マンション1階のテナントです!

愛媛県松山市小坂4-6-42
45.13m2(13.65坪)
84,700円(税込)
今日チェックした物件
お急ぎの方はお電話からお気軽にどうぞ!
089-913-2329 営業時間 / 9:00〜18:00 定休日 / 日曜、年末年始


089-913-2329



















089-913-2329