情報更新日:2025年08月05日/広告有効期限:なし
表示閲覧回数(過去30日間):33
お急ぎの方はお電話からお気軽にどうぞ!
089-913-2329 営業時間 / 9:00〜18:00 定休日 / 日曜、年末年始
>物件詳細情報
| 基本情報 | |
|---|---|
| 物件番号 | 10007806248 |
| 店舗形態 | 店舗, 事務所 |
| オススメ業種 | 事務所, 美容関係, 物販関係, サービス業 |
| 物件名 | EASTⅡ 201 |
| 物件の状態 | 空き |
| 引越し時期 | 即 |
| 契約形態と期間 |
普通契約期間:2年間 |
| 所在地・交通 | |
|---|---|
| 所在地 | 愛媛県松山市南久米町-549-1 |
| 交 通1 | 高浜・横河原線北久米駅 徒歩11分 |
| 交 通2 | - |
| 賃料 | |
|---|---|
| 賃 料 | 132,000円(税込) |
| 敷 金 |
3ヶ月 |
| その他月額費用 1 | 水道料 2,200円(税込) |
| その他 | |
|---|---|
| 備考 | ■家賃保証会社への加入必須 ■指定する火災保険への加入必須 ■鍵交換費用要確認 ■町費:実費 ■エアコン、照明:残置物 |
| 建物 | |
|---|---|
| 建物構造 | 鉄骨造 |
| 建物階建て |
地上5階 |
| 施工年月 | 1990(平成2)年 10月 |
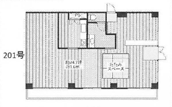
| 募集物件の階数 | 地上 2階 201号室 |
| 契約面積 | 81.65m2(24.70坪) |
| 用途地域 | 近商地域 |
| 設備 | |
|---|---|
| トイレ | 有/専用 |
| キッチン | 有/専用 |
| 駐車場 | |
|---|---|
| 状 況 | 空有 |
| 駐車料金 | 6,600円(税込) |
| 取引情報 | |
|---|---|
| 取引態様 | 媒介 |
| 客付 | 不可 |
この物件をチェックした人はこんな物件も見ています
- マンション1階のテナントです!

愛媛県松山市小坂4-6-42
45.13m2(13.65坪)
84,700円(税込)
- 勝山電停そば!大型のオフィスビルです!

愛媛県松山市一番町1-15-2
71.67m2(21.68坪)
賃料未定
- 松山市駅から徒歩2分!内装も綺麗なエステ店跡の2階です!

愛媛県松山市湊町5-3-4
69.45m2(21.01坪)
187,000円(税込)
- 住宅街にあるテナント1階です!駐車場1台賃料込み!!

愛媛県松山市石手4-8-11
47.50m2(14.37坪)
77,000円(税込)
- 松山市一番町の繁華街にある物件!!

愛媛県松山市二番町1-11/8
270.15m2(81.72坪)
330,000円(税込)
今日チェックした物件
- 愛媛新聞本社の向かい側!大手町駅より徒歩1分です!隣には、広い50円パーキングがあります!!
-

愛媛県松山市大手町1-8-16
35.37m2(10.70坪)
55,000円(税込)
- 国道33号線近くのビル1階です!
-

愛媛県松山市越智3-5-18
46.46m2(14.05坪)
99,000円(税込)
- 三番町にあるオフィスビルの5階です!
-

愛媛県松山市三番町4-12-7
143.74m2(43.48坪)
430,452円(税込)
- 県道沿いテナント1階です!駐車場1台込み賃料です!
-

愛媛県松山市富久町-441
70.06m2(21.19坪)
176,000円(税込)
- 銀天街アーケード内!
-

愛媛県松山市湊町4-8-6
117.83m2(35.64坪)
396,000円(税込)
お急ぎの方はお電話からお気軽にどうぞ!
089-913-2329 営業時間 / 9:00〜18:00 定休日 / 日曜、年末年始


089-913-2329













089-913-2329