情報更新日:2025年10月01日/広告有効期限:なし
表示閲覧回数(過去30日間):66
お急ぎの方はお電話からお気軽にどうぞ!
089-913-2329 営業時間 / 9:00〜18:00 定休日 / 日曜、年末年始
>物件詳細情報
| 基本情報 | |
|---|---|
| 物件番号 | 10007806358 |
| 店舗形態 | 店舗, 事務所, 店舗(飲食店可) |
| オススメ業種 | 医療関係, 物販関係, サービス業, 軽飲食 |
| 物件名 | 日切ビル 1階東側 |
| 物件の状態 | 空き |
| 引越し時期 | 相談 |
| 契約形態と期間 |
普通契約期間:3年間 |
| 所在地・交通 | |
|---|---|
| 所在地 | 愛媛県松山市湊町5-4-25 |
| 交 通1 | 伊予鉄3系統松山市駅 徒歩1分 |
| 交 通2 | - |
| 賃料 | |
|---|---|
| 賃 料 | 517,000円(税込) |
| 敷 金 |
6ヶ月 |
| 共益費・管理費 | 11,000円(税込) |
| その他 | |
|---|---|
| 備考 | 家賃保証会社加入要 ※理・美容室NG ※東側壁面の開口不可(窓や換気扇取付NG) ※設備のエアコンは残置物の為、契約後の維持・管理・補修・破棄・新設は入居者の負担となります。 ※エアコン室外機は、屋上のみ設置可 ※店頭(契約面積外)の利用可能 背の高い遮蔽物になるものはNG、階段への動線確保の為、角部は控えてください ※グリストラップ等の床下埋設排水等の造作は要相談 ※業種については随時相談 |
| 建物 | |
|---|---|
| 建物構造 | 鉄骨造 |
| 建物階建て |
地上6階 |
| 施工年月 | 1983(昭和58)年 01月 |
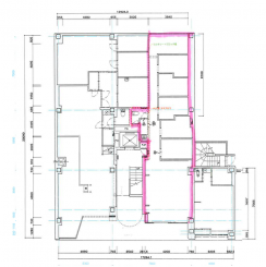
| 募集物件の階数 | 地上 1階 東号室 |
| 契約面積 | 77.69m2(23.50坪) |
| 用途地域 | 商業地域 |
| 設備 | |
|---|---|
| 水道 | 公営 |
| 下水道 | 公共下水 |
| エレベータ | 有 |
| エアコン | 有 |
| 駐車場 | |
|---|---|
| 状 況 | 無し |
| 取引情報 | |
|---|---|
| 取引態様 | 媒介 |
| 客付 | 可 |
この物件をチェックした人はこんな物件も見ています
- 松山市駅から徒歩2分!内装も綺麗なエステ店跡の2階です!

愛媛県松山市湊町5-3-4
69.45m2(21.01坪)
187,000円(税込)
- 松山市一番町の繁華街にある物件!!

愛媛県松山市二番町1-11/8
270.15m2(81.72坪)
330,000円(税込)
- マンション1階のテナントです!

愛媛県松山市小坂4-6-42
45.13m2(13.65坪)
84,700円(税込)
- 道後温泉本館・子規記念博物館を結ぶ道沿いにある希少物件です!

愛媛県松山市道後湯之町-6-27
137.50m2(41.59坪)
781,000円(税込)
- 古川西の病院・薬局のあと!近隣にスーパー・ドラッグストアなど集客施設あり!インターへもアクセス便利な立地です!駐車場6台込み!

愛媛県松山市古川西2-3-18
300.10m2(90.78坪)
548,735円(税込)
今日チェックした物件
お急ぎの方はお電話からお気軽にどうぞ!
089-913-2329 営業時間 / 9:00〜18:00 定休日 / 日曜、年末年始


089-913-2329



















089-913-2329