情報更新日:2025年05月12日/広告有効期限:なし
表示閲覧回数(過去30日間):58
お急ぎの方はお電話からお気軽にどうぞ!
089-913-2329 営業時間 / 9:00〜18:00 定休日 / 日曜、年末年始
>物件詳細情報
| 基本情報 | |
|---|---|
| 物件番号 | 10007807922 |
| 店舗形態 | 店舗(飲食店可), 店舗 |
| オススメ業種 | 重飲食, 軽飲食, サービス業 |
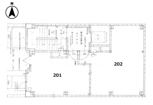
| 物件名 | 松竹ビル 2階202(奥) |
| 物件の状態 | 空き |
| 引越し時期 | 即 |
| 契約形態と期間 |
普通契約期間:2年間 |
| 所在地・交通 | |
|---|---|
| 所在地 | 愛媛県松山市二番町1-2-10 |
| 交 通1 | 伊予鉄1系統勝山町駅 徒歩5分 |
| 交 通2 | 伊予鉄道(株)松山商業前 徒歩3分 |
| 賃料 | |
|---|---|
| 賃 料 | 121,000円(税込) |
| 敷 金 |
3ヶ月 |
| その他月額費用 1 | 上下水道料 5,200円(税込) |
| その他月額費用 2 | 看板灯 3,500円(税込) |
| その他 | |
|---|---|
| 備考 | 電気代実費 ※家賃保証会社加入必須 |
| 建物 | |
|---|---|
| 建物構造 | 鉄骨造 |
| 建物階建て |
地上6階 地下1階 |
| 施工年月 | 1980(昭和55)年 12月 |
| 募集物件の階数 | 地上 2階 202号室 |
| 契約面積 | 31.15m2(9.42坪) |
| 用途地域 | 商業地域 |
| 設備 | |
|---|---|
| 水道 | 公営 |
| 下水道 | 公共下水 |
| エレベータ | 有 |
| エアコン | 有り/個別 |
| トイレ | 有/専用 |
| 駐車場 | |
|---|---|
| 状 況 | 無し |
| 取引情報 | |
|---|---|
| 取引態様 | 媒介 |
| 客付 | 不可 |
この物件をチェックした人はこんな物件も見ています
- 此花町1階テナントです!

愛媛県松山市此花町3-15
52.17m2(15.78坪)
82,500円(税込)
- 市内中心部、3階のテナントです!飲食系のビルです!

愛媛県松山市二番町1-2-1
34.38m2(10.40坪)
106,500円(税込)
- 中心地のオフィスビル1階です!

愛媛県松山市一番町4-1-1
63.90m2(19.33坪)
賃料未定
- 小坂交差点すぐそば、環状線沿いの1階テナントです!

愛媛県松山市枝松5-3-31
70.41m2(21.30坪)
164,010円(税込)
- 中心地のオフィスビル8階です!

愛媛県松山市一番町4-1-1
208.56m2(63.09坪)
賃料未定
今日チェックした物件
- 松山市立椿小学校至近!沿道沿いの1階テナントです!
-

愛媛県松山市古川西1-2-26
29.74m2(9.00坪)
88,000円(税込)
- 平和通りからも近い1階のテナントです!エアコン2基付!
-

愛媛県松山市清水町1-9-5
33.10m2(10.01坪)
60,500円(税込)
- 約13坪の事務所・倉庫です!前面駐車場2台込です!
-

愛媛県松山市祝谷3-1-38
46.08m2(13.94坪)
110,000円(税込)
- 松山市駅近くのテナントです!学習塾跡居抜き物件です!!
-

愛媛県松山市湊町5-3-4
73.96m2(22.37坪)
165,000円(税込)
- 二番町繁華街の飲食店ビルです!
-

愛媛県松山市二番町1-2-10
25.70m2(7.77坪)
99,000円(税込)
お急ぎの方はお電話からお気軽にどうぞ!
089-913-2329 営業時間 / 9:00〜18:00 定休日 / 日曜、年末年始


089-913-2329


















089-913-2329