情報更新日:2025年05月12日/広告有効期限:なし
表示閲覧回数(過去30日間):14
お急ぎの方はお電話からお気軽にどうぞ!
089-913-2329 営業時間 / 9:00〜18:00 定休日 / 日曜、年末年始
>物件詳細情報
| 基本情報 | |
|---|---|
| 物件番号 | 10007808269 |
| 店舗形態 | 店舗, 事務所 |
| オススメ業種 | 塾・学校・教育関係, 美容関係, サービス業, 事務所 |
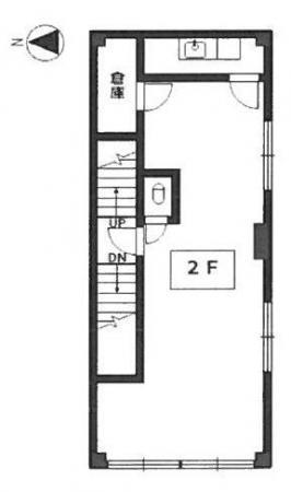
| 物件名 | 富田ビル 2階 |
| 物件の状態 | 空き |
| 引越し時期 | 相談 |
| 契約形態と期間 |
普通契約期間:2年間 |
| 所在地・交通 | |
|---|---|
| 所在地 | 愛媛県松山市花園町-4-20 |
| 交 通1 | 伊予鉄1系統松山市駅 徒歩3分 |
| 交 通2 | - |
| 賃料 | |
|---|---|
| 賃 料 | 121,000円(税込) |
| 敷 金 |
5ヶ月 |
| 共益費・管理費 | 3,300円(税込) |
| 礼 金 | 1ヶ月 |
| その他 | |
|---|---|
| 備考 | 家賃保証会社加入要 飲食店不可 ガス・水道代は貸主負担。 商店街組合費等実費 |
| 建物 | |
|---|---|
| 建物構造 | 鉄骨造 |
| 建物階建て |
地上5階 |
| 施工年月 | 1979(昭和54)年 09月 |
| 募集物件の階数 | 地上 2階 |
| 契約面積 | 48.08m2(14.54坪) |
| 用途地域 | 商業地域 |
| 設備 | |
|---|---|
| ガス | 都市ガス |
| トイレ | 有/専用 |
| 駐車場 | |
|---|---|
| 状 況 | 無し |
| 取引情報 | |
|---|---|
| 取引態様 | 媒介 |
| 客付 | 不可 |
この物件をチェックした人はこんな物件も見ています
- 2021年築の1階テナントです!スケルトンとなっています!

愛媛県松山市永代町-5-4
27.75m2(8.39坪)
55,000円(税込)
- 中心地のオフィスビル1階です!

愛媛県松山市一番町4-1-1
63.90m2(19.33坪)
賃料未定
- 小坂交差点すぐそば、環状線沿いの1階テナントです!

愛媛県松山市枝松5-3-31
70.41m2(21.30坪)
164,010円(税込)
- 中心地のオフィスビル8階です!

愛媛県松山市一番町4-1-1
208.56m2(63.09坪)
賃料未定
- 中心地のオフィスビル3階です!

愛媛県松山市一番町4-1-1
71.11m2(21.51坪)
賃料未定
今日チェックした物件
- 1階に温泉施設あり!スモールオフィスにいかがですか?
-

愛媛県松山市緑町2-6-20
25.20m2(7.62坪)
41,800円(税込)
- 駅から徒歩2分!バルコニー付きの4階テナントです!
-

愛媛県松山市中一万町-3-22
30.50m2(9.23坪)
63,800円(税込)
- 約6坪の物件です!スモールオフィスにいかがですか?
-

愛媛県松山市北藤原町-4-5
22.50m2(6.81坪)
28,600円(税込)
- 市役所から近い事務所物件です!
-

愛媛県松山市三番町4-8-7
59.84m2(18.10坪)
198,000円(税込)
- かいそう会館跡の一棟貸しテナントです!駐車場20台程度あります。
-

愛媛県松山市日の出町-8-38
1,398m2(422.90坪)
990,000円(税込)
お急ぎの方はお電話からお気軽にどうぞ!
089-913-2329 営業時間 / 9:00〜18:00 定休日 / 日曜、年末年始


089-913-2329















089-913-2329