情報更新日:2025年12月18日/広告有効期限:なし
表示閲覧回数(過去30日間):23
お急ぎの方はお電話からお気軽にどうぞ!
089-913-2329 営業時間 / 9:00〜18:00 定休日 / 日曜、年末年始
>物件詳細情報
| 基本情報 | |
|---|---|
| 物件番号 | 10007808330 |
| 店舗形態 | 居抜店舗, 店舗(飲食店可), 店舗 |
| オススメ業種 | 物販関係, 軽飲食, サービス業 |
| 物件名 | フジヤビル 1・2階 |
| 物件の状態 | 空き |
| 引越し時期 | 相談 |
| 契約形態と期間 |
普通契約期間:3年間 |
| 所在地・交通 | |
|---|---|
| 所在地 | 愛媛県松山市大街道2-2-5 |
| 交 通1 | 伊予鉄1系統大街道駅 徒歩4分 |
| 交 通2 | - |
| 賃料 | |
|---|---|
| 賃 料 | 660,000円(税込) |
| 敷 金 |
5ヶ月 |
| その他 | |
|---|---|
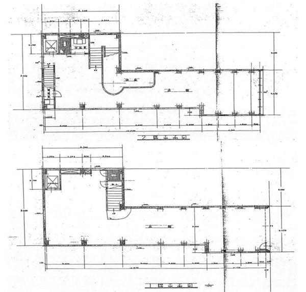
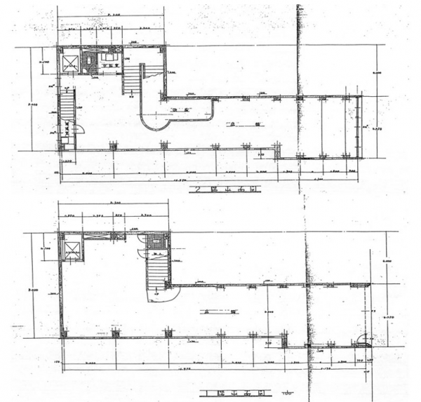
| 備考 | ※家賃保証会社加入要 ※共益費:実費 本物件に設置されているエレベーターは、使用できません 1F:130.15㎡(39.37坪)2F:130.77㎡(39.55坪) |
| 建物 | |
|---|---|
| 建物構造 | 鉄筋コンクリート造 |
| 建物階建て |
地上5階 |
| 施工年月 | 1970(昭和45)年 09月 |
| 募集物件の階数 | 地上 1~2階 |
| 契約面積 | 260.92m2(78.93坪) |
| 用途地域 | 商業地域 |
| 駐車場 | |
|---|---|
| 状 況 | 無し |
| 取引情報 | |
|---|---|
| 取引態様 | 媒介 |
| 客付 | 可 |
この物件をチェックした人はこんな物件も見ています
- 松山市一番町の繁華街にある物件!!

愛媛県松山市二番町1-11/8
270.15m2(81.72坪)
330,000円(税込)
- 東雲大学・姫彦温泉近くの飲食店跡の物件、駐車場6台込み! 飲食店等での利用はいかがでしょうか。

愛媛県松山市畑寺2-4-11
103.80m2(31.40坪)
220,000円(税込)
- 此花町1階テナントです!

愛媛県松山市此花町3-15
52.17m2(15.78坪)
82,500円(税込)
- 小坂3丁目1階テナントです! 駐車場付き!

愛媛県松山市小坂3-2-6
36m2(10.89坪)
70,000円(税込)
- 2025年4月新築の海側の一棟貸です!駐車場縦列2台分込!

愛媛県松山市和気町2-927-21
82.80m2(25.05坪)
104,500円(税込)
今日チェックした物件
- 2025年11月竣工予定の新築物件!1フロア1テナント!飲食店相談可能!
-

愛媛県松山市二番町3-4-15
97.72m2(29.56坪)
231,000円(税込)
- 市内中心部の飲食可テナントビル2階部分です!大街道商店街すぐ近くの好立地!
-

愛媛県松山市三番町3-1-8
63.45m2(19.19坪)
198,000円(税込)
- 2025年秋完成の新築オフィスビル1階テナントです!西堀端通り沿い!
-

愛媛県松山市本町1-3-4
217.56m2(65.81坪)
賃料未定
- 1階事務所付きの倉庫・作業場です!広い敷地に複数台駐車可能です!
-

愛媛県松山市北条辻-1136-13
480.88m2(145.47坪)
440,000円(税込)
- 国道196号線沿いビル3階です!OAフロアでオフィス専用です!敷地内駐車場有!
-

愛媛県松山市山越(丁目)1-1-45
77.42m2(23.42坪)
181,500円(税込)
お急ぎの方はお電話からお気軽にどうぞ!
089-913-2329 営業時間 / 9:00〜18:00 定休日 / 日曜、年末年始


089-913-2329



















089-913-2329