情報更新日:2026年01月26日/広告有効期限:なし
表示閲覧回数(過去30日間):46
お急ぎの方はお電話からお気軽にどうぞ!
089-913-2329 営業時間 / 9:00〜18:00 定休日 / 日曜、年末年始
>物件詳細情報
| 基本情報 | |
|---|---|
| 物件番号 | 69689760954 |
| 店舗形態 | 店舗, 事務所 |
| オススメ業種 | 事務所, サービス業, 美容関係, 塾・学校・教育関係 |
| 物件名 | ロータリー本町 207号 |
| 物件の状態 | 空き |
| 引越し時期 | 即 |
| 契約形態と期間 |
普通契約期間:2年間 |
| 所在地・交通 | |
|---|---|
| 所在地 | 愛媛県松山市本町6-6-7 |
| 交 通1 | 伊予鉄6系統本町6丁目 駅 徒歩1分 |
| 交 通2 | - |
| 賃料 | |
|---|---|
| 賃 料 | 50,000円(税込) |
| 敷 金 |
1ヶ月 |
| 共益費・管理費 | 5,000円(税込) |
| その他 | |
|---|---|
| 備考 | 保証会社加入必須です 火災保険要加入 ペット飼育相談可(ペット保証金10万円要・管理組合の許可必要) 敷引:2年未満解約100%、2年以降なし |
| 建物 | |
|---|---|
| 建物構造 | 鉄骨鉄筋コンクリート造 |
| 建物階建て |
地上14階 |
| 施工年月 | 1981(昭和56)年 02月 |
| 募集物件の階数 | 地上 2階 207号室 |
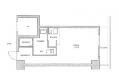
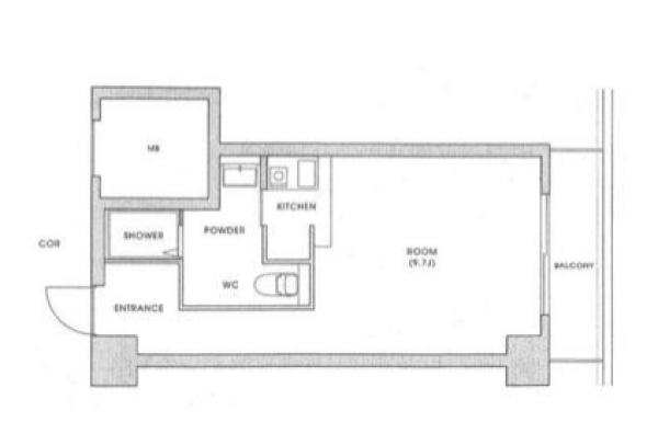
| 契約面積 | 26.21m2(7.93坪) |
| 用途地域 | 商業地域 |
| 設備 | |
|---|---|
| 水道 | 公営 |
| エレベータ | 有/2基 |
| トイレ | 有/専用 |
| キッチン | 有/専用 |
| 駐車場 | |
|---|---|
| 状 況 | 無し |
| 取引情報 | |
|---|---|
| 取引態様 | 媒介 |
| 客付 | 不可 |
この物件をチェックした人はこんな物件も見ています
- マンション1階のテナントです!

愛媛県松山市小坂4-6-42
45.13m2(13.65坪)
84,700円(税込)
- 勝山電停そば!大型のオフィスビルです!

愛媛県松山市一番町1-15-2
71.67m2(21.68坪)
賃料未定
- 松山市駅から徒歩2分!内装も綺麗なエステ店跡の2階です!

愛媛県松山市湊町5-3-4
69.45m2(21.01坪)
187,000円(税込)
- 古川西の病院・薬局のあと1階です!近隣にスーパー・ドラッグストアなど集客施設あり!インターへもアクセス便利な立地です!

愛媛県松山市古川西2-3-18
226.80m2(68.61坪)
377,300円(税込)
- ロードサイド沿いの1階テナントです!駐車場4台分有り!

愛媛県松山市和泉北1-16-10
66m2(19.97坪)
180,000円(税込)
今日チェックした物件
お急ぎの方はお電話からお気軽にどうぞ!
089-913-2329 営業時間 / 9:00〜18:00 定休日 / 日曜、年末年始


089-913-2329













089-913-2329