情報更新日:2025年02月13日/広告有効期限:なし
表示閲覧回数(過去30日間):27
お急ぎの方はお電話からお気軽にどうぞ!
089-913-2329 営業時間 / 9:00〜18:00 定休日 / 日曜、年末年始
>物件詳細情報
| 基本情報 | |
|---|---|
| 物件番号 | 69689761229 |
| 店舗形態 | 事務所 |
| オススメ業種 | 事務所, サービス業 |
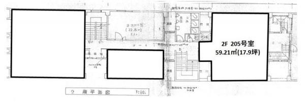
| 物件名 | 永井ビル 2階205号 |
| 物件の状態 | 空き |
| 引越し時期 | 即 |
| 契約形態と期間 |
普通契約期間:3年間 |
| 所在地・交通 | |
|---|---|
| 所在地 | 愛媛県松山市二番町4-2-14 |
| 交 通1 | 伊予鉄1系統県庁前駅 徒歩5分 |
| 交 通2 | - |
| 賃料 | |
|---|---|
| 賃 料 | 108,000円(税込) |
| 敷 金 |
6ヶ月 |
| その他 | |
|---|---|
| 備考 | 内装は事務所仕様にて引渡し(飲食店不可) 駐車場は車種制限有り。1台空(15,000円/台) 賃料に対しての消費税は、契約時は不要。但し、将来家主が課税業者となった時はその月から賃借人の負担となる。 2階の奥になりますので、通り沿いからは見えません。 家賃保証会社加入要 |
| 建物 | |
|---|---|
| 建物構造 | 鉄筋コンクリート造 |
| 建物階建て |
地上3階 地下1階 |
| 施工年月 | 1969(昭和44)年 05月 |
| 募集物件の階数 | 地上 2階 205号室 |
| 契約面積 | 59.21m2(17.91坪) |
| 用途地域 | 商業地域 |
| 設備 | |
|---|---|
| エレベータ | 無 |
| エアコン | 有 |
| トイレ | 有/共用 |
| 駐車場 | |
|---|---|
| 状 況 | 空有 |
| 駐車料金 | 15,000円(税込) |
| 空き台数 | 1台 |
| 取引情報 | |
|---|---|
| 取引態様 | 媒介 |
| 客付 | 不可 |
この物件をチェックした人はこんな物件も見ています
- マンション1階のテナントです!

愛媛県松山市小坂4-6-42
45.13m2(13.65坪)
84,700円(税込)
- 2021年築の1階テナントです!スケルトンとなっています!

愛媛県松山市永代町-5-4
27.75m2(8.39坪)
55,000円(税込)
- 一番町通りに面したオフィスビルです!

愛媛県松山市一番町2-5-20
41.30m2(12.49坪)
110,000円(税込)
- 銀天街アーケード至近3Fのテナントです!!

愛媛県松山市千舟町5-1-11
59.50m2(18.00坪)
118,800円(税込)
- 診療所跡の一棟貸。医院・保育園・デイサービス・営業所などいかがでしょうか?

愛媛県松山市東野6-5-5
405.74m2(122.74坪)
880,000円(税込)
今日チェックした物件
お急ぎの方はお電話からお気軽にどうぞ!
089-913-2329 営業時間 / 9:00〜18:00 定休日 / 日曜、年末年始


089-913-2329



















089-913-2329