情報更新日:2025年09月26日/広告有効期限:なし
表示閲覧回数(過去30日間):67
お急ぎの方はお電話からお気軽にどうぞ!
089-913-2329 営業時間 / 9:00〜18:00 定休日 / 日曜、年末年始
>物件詳細情報
| 基本情報 | |
|---|---|
| 物件番号 | 69689761315 |
| 店舗形態 | 事務所, 一棟貸し, 店舗, 一棟貸し |
| オススメ業種 | 事務所, サービス業, 物販関係, 美容関係 |
| 物件名 | ニック伊予灘 一棟貸 |
| 物件の状態 | 空き |
| 引越し時期 | 即 |
| 契約形態と期間 |
普通 |
| 所在地・交通 | |
|---|---|
| 所在地 | 愛媛県伊予市灘町-36-1 |
| 交 通1 | 郡中線郡中港駅 徒歩4分 |
| 交 通2 | - |
| 賃料 | |
|---|---|
| 賃 料 | 385,000円(税込) |
| 敷 金 |
4ヶ月 |
| 礼 金 | 2ヶ月 |
| その他 | |
|---|---|
| 備考 | 家賃保証会社加入要 敷地内駐車場:有※縦列8~10台 金庫室あり |
| 建物 | |
|---|---|
| 建物構造 | 鉄筋コンクリート造 |
| 建物階建て |
地上3階 |
| 施工年月 | 1964(昭和39)年 02月 |
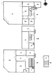
| 募集物件の階数 | 地上 1-3階 |
| 契約面積 | 480.14m2(145.24坪) |
| 用途地域 | 商業地域 |
| 設備 | |
|---|---|
| 下水道 | 公共下水 |
| ガス | LPG |
| トイレ | 有/専用 |
| 駐車場 | |
|---|---|
| 状 況 | 空有無料 |
| 空き台数 | 10台 |
| 取引情報 | |
|---|---|
| 取引態様 | 媒介 |
| 客付 | 可 |
この物件をチェックした人はこんな物件も見ています
- マンション1階のテナントです!

愛媛県松山市小坂4-6-42
45.13m2(13.65坪)
84,700円(税込)
- 松山市一番町の繁華街にある物件!!

愛媛県松山市二番町1-11/8
270.15m2(81.72坪)
330,000円(税込)
- 2021年築の1階テナントです!スケルトンとなっています!

愛媛県松山市永代町-5-4
27.75m2(8.39坪)
55,000円(税込)
- 小坂3丁目1階テナントです! 駐車場付き!

愛媛県松山市小坂3-2-6
36m2(10.89坪)
65,000円(税込)
- 道後温泉エリアの2棟一括貸テナントです!元画廊跡で駐車場6台込み!!周辺はホテル、旅館、ゲストハウス等が盛業中!

愛媛県松山市道後湯月町-5-28
384.40m2(116.28坪)
459,000円(税込)
今日チェックした物件
- 勝山電停そば!大型のオフィスビルです!
-

愛媛県松山市一番町1-15-2
30.08m2(9.10坪)
賃料未定
- 事務所付倉庫物件です!倉庫前駐車可!!
-

愛媛県松山市若葉町-2-4
240m2(72.60坪)
184,800円(税込)
- ロードサイド沿いの1階テナントです!駐車場4台分有り!
-

愛媛県松山市和泉北1-16-10
66m2(19.97坪)
180,000円(税込)
- 伊予市にあるテナント1階です!店舗前駐車場3台付き!
-

愛媛県伊予市米湊-299-1-1
71.82m2(21.73坪)
99,000円(税込)
- 国道379号線沿いの1階テナントです!敷地内駐車場有!
-

愛媛県伊予郡砥部町宮内(その他)-583
38m2(11.50坪)
62,700円(税込)
お急ぎの方はお電話からお気軽にどうぞ!
089-913-2329 営業時間 / 9:00〜18:00 定休日 / 日曜、年末年始


089-913-2329



















089-913-2329