情報更新日:2025年03月01日/広告有効期限:なし
表示閲覧回数(過去30日間):42
お急ぎの方はお電話からお気軽にどうぞ!
089-913-2329 営業時間 / 9:00〜18:00 定休日 / 日曜、年末年始
>物件詳細情報
| 基本情報 | |
|---|---|
| 物件番号 | 69689761353 |
| 店舗形態 | 店舗, 一棟貸し, 店舗(飲食店可) |
| オススメ業種 | 物販関係, 美容関係, 軽飲食, サービス業 |
| 物件名 | 銀天街店舗 一棟貸 |
| 物件の状態 | 空き |
| 引越し時期 | 即 |
| 契約形態と期間 |
普通契約期間:3年間 |
| 所在地・交通 | |
|---|---|
| 所在地 | 愛媛県松山市湊町4-5-11 |
| 交 通1 | 伊予鉄1系統松山市駅 徒歩3分 |
| 交 通2 | - |
| 賃料 | |
|---|---|
| 賃 料 | 330,000円(税込) |
| 敷 金 |
3ヶ月 |
| その他 | |
|---|---|
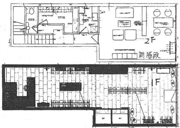
| 備考 | 家賃保証会社必須です 飲食店可ですが匂いの強い業種等は不可 1F:52.93㎡ 2F:52.93㎡ 敷引き:1ヶ月あり 商店街加入金:50,000円(退去時返金あり) 商店街割賦金:16,348円/月 アーケード使用料:5,664円/月 建物間口:4.8m 電気容量(電灯)75KVA 看板取付スペースあり 2021年12月リフォーム:水回り(キッチン・トイレ)、内装全面(床・壁・天井・建具) 2010年8月リフォーム:外壁・屋根 2000年1月:建物補強工事 |
| 建物 | |
|---|---|
| 建物構造 | 木造 |
| 建物階建て |
地上2階 |
| 施工年月 | 不明 |
| 募集物件の階数 | 地上 1-2階 |
| 契約面積 | 105.86m2(32.02坪) |
| 用途地域 | 商業地域 |
| 設備 | |
|---|---|
| ガス | 都市ガス |
| エアコン | 有 |
| 駐車場 | |
|---|---|
| 状 況 | 無し |
| 取引情報 | |
|---|---|
| 取引態様 | 媒介 |
| 客付 | 不可 |
この物件をチェックした人はこんな物件も見ています
- 松山市一番町の繁華街にある物件!!

愛媛県松山市二番町1-11/8
270.15m2(81.72坪)
330,000円(税込)
- マンション1階のテナントです!

愛媛県松山市小坂4-6-42
45.13m2(13.65坪)
84,700円(税込)
- 国道11号線の通りにある2階テナントです!

愛媛県松山市小坂3-4-8
50.18m2(15.18坪)
99,000円(税込)
- 松山市東部にある、カフェレストランの居抜き物件です!駐車場15台込みの希少物件です!!

愛媛県松山市三町3-1-33
117.72m2(35.61坪)
341,000円(税込)
- 勝山通り沿い!1階のワンフロアです!駐車場4台分あり!!

愛媛県松山市勝山町1-9-1
169.61m2(51.31坪)
385,000円(税込)
今日チェックした物件
お急ぎの方はお電話からお気軽にどうぞ!
089-913-2329 営業時間 / 9:00〜18:00 定休日 / 日曜、年末年始


089-913-2329



















089-913-2329