情報更新日:2026年04月06日/広告有効期限:なし
表示閲覧回数(過去30日間):81
お急ぎの方はお電話からお気軽にどうぞ!
089-913-2329 営業時間 / 9:00〜18:00 定休日 / 日曜、年末年始
>物件詳細情報
| 基本情報 | |
|---|---|
| 物件番号 | 69689762140 |
| 店舗形態 | 事務所 |
| オススメ業種 | 事務所 |
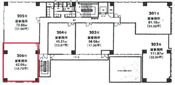
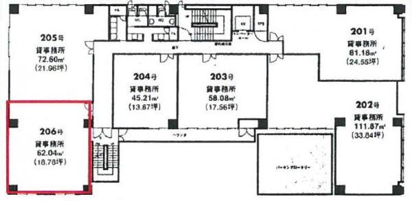
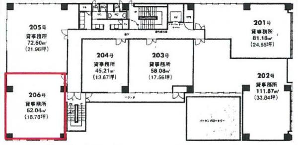
| 物件名 | ミツネビルディング 206号室 |
| 物件の状態 | 空き |
| 引越し時期 | 相談 |
| 契約形態と期間 |
普通契約期間:2年間 |
| 所在地・交通 | |
|---|---|
| 所在地 | 愛媛県松山市三番町7-13-13 |
| 交 通1 | 伊予鉄5系統西堀端駅 徒歩2分 |
| 交 通2 | - |
| 賃料 | |
|---|---|
| 賃 料 | 134,134円(税込) |
| 敷 金 |
6ヶ月 |
| 共益費・管理費 | 30,954円(税込) |
| その他月額費用 1 | 町費 100円(税込) |
| 精算方法 | 実費 |
| その他 | |
|---|---|
| 備考 | 家賃保証会社必須です 上下水道等は共益費込み 電気代は毎月家賃請求書記載 駐車場 : 敷地内タワーパーキング空きあり@¥15,000(税別) |
| 建物 | |
|---|---|
| 建物構造 | 鉄骨鉄筋コンクリート造 |
| 建物階建て |
地上8階 |
| 施工年月 | 1987(昭和62)年 03月 |
| 募集物件の階数 | 地上 2階 206号室 |
| 契約面積 | 62.02m2(18.76坪) |
| 用途地域 | 商業地域 |
| 設備 | |
|---|---|
| 水道 | 公営 |
| 下水道 | 公共下水 |
| エレベータ | 有 |
| エアコン | 有り/個別 |
| トイレ | 有/共用 |
| 給湯室 | 有/共用 |
| 床仕様 | Pタイル |
| 内装業者指定 | 有 |
| 駐車場 | |
|---|---|
| 状 況 | 空有 |
| 駐車料金 | 16,500円(税込) |
| 取引情報 | |
|---|---|
| 取引態様 | 媒介 |
| 客付 | 可 |
この物件をチェックした人はこんな物件も見ています
- マンション1階のテナントです!

愛媛県松山市小坂4-6-42
45.13m2(13.65坪)
84,700円(税込)
- 勝山電停そば!大型のオフィスビルです!

愛媛県松山市一番町1-15-2
71.67m2(21.68坪)
賃料未定
- 松山市駅から徒歩2分!内装も綺麗なエステ店跡の2階です!

愛媛県松山市湊町5-3-4
69.45m2(21.01坪)
187,000円(税込)
- 古川西の病院・薬局のあと1階です!近隣にスーパー・ドラッグストアなど集客施設あり!インターへもアクセス便利な立地です!

愛媛県松山市古川西2-3-18
226.80m2(68.61坪)
377,300円(税込)
- 松山市一番町の繁華街にある物件!!

愛媛県松山市二番町1-11/8
270.15m2(81.72坪)
330,000円(税込)
今日チェックした物件
お急ぎの方はお電話からお気軽にどうぞ!
089-913-2329 営業時間 / 9:00〜18:00 定休日 / 日曜、年末年始


089-913-2329



















089-913-2329