情報更新日:2025年10月01日/広告有効期限:なし
表示閲覧回数(過去30日間):50
お急ぎの方はお電話からお気軽にどうぞ!
089-913-2329 営業時間 / 9:00〜18:00 定休日 / 日曜、年末年始
>物件詳細情報
| 基本情報 | |
|---|---|
| 物件番号 | 69689762252 |
| 店舗形態 | 事務所, 店舗 |
| オススメ業種 | 事務所, 塾・学校・教育関係, 倉庫, サービス業 |
| 物件名 | ●和泉北2丁目学習塾跡 1F |
| 物件の状態 | 空き |
| 引越し時期 | 相談 |
| 契約形態と期間 |
普通 |
| 所在地・交通 | |
|---|---|
| 所在地 | 愛媛県松山市和泉北2-12-31 |
| 交 通1 | 伊予鉄道(株)愛媛朝日テレビ前 徒歩5分 |
| 交 通2 | - |
| 賃料 | |
|---|---|
| 賃 料 | 44,000円(税込) |
| 敷 金 |
3ヶ月 |
| その他 | |
|---|---|
| 備考 | ■家賃保証会社必須です ■飲食店不可 ■水道料実費(飲用水は簡易水道組合より集金あり) |
| 建物 | |
|---|---|
| 建物構造 | 木造 |
| 建物階建て |
地上2階 |
| 施工年月 | 1994(平成6)年 |
| 募集物件の階数 | 地上 1階 |
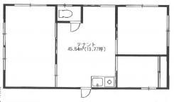
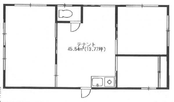
| 契約面積 | 45.54m2(13.78坪) |
| 用途地域 | 1種住居 |
| 設備 | |
|---|---|
| 水道 | 井戸 |
| 下水道 | 公共下水 |
| エアコン | 有 |
| トイレ | 有/専用 |
| キッチン | 有/専用 |
| 床仕様 | CFシート |
| 照明設備 | 有 |
| 駐車場 | |
|---|---|
| 状 況 | 無し |
| 取引情報 | |
|---|---|
| 取引態様 | 媒介 |
| 客付 | 可 |
この物件をチェックした人はこんな物件も見ています
- 2022年4月リノベーション完成!道後地区の1階のテナントです!

愛媛県松山市道後町(1、2丁目)1-4-31
50.08m2(15.15坪)
99,000円(税込)
- 住宅街にあるテナント1階です!駐車場1台賃料込み!!

愛媛県松山市石手4-8-11
47.50m2(14.37坪)
77,000円(税込)
- マンション1階のテナントです!

愛媛県松山市小坂4-6-42
45.13m2(13.65坪)
84,700円(税込)
- 勝山電停そば!大型のオフィスビルです!

愛媛県松山市一番町1-15-2
71.67m2(21.68坪)
賃料未定
- ローソン市坪北店至近!一棟貸しの事務所付き倉庫です!駐車場5台込み!!

愛媛県松山市市坪北1-14-18
337.79m2(102.18坪)
330,000円(税込)
今日チェックした物件
お急ぎの方はお電話からお気軽にどうぞ!
089-913-2329 営業時間 / 9:00〜18:00 定休日 / 日曜、年末年始


089-913-2329



















089-913-2329