情報更新日:2025年11月20日/広告有効期限:なし
表示閲覧回数(過去30日間):27
お急ぎの方はお電話からお気軽にどうぞ!
089-913-2329 営業時間 / 9:00〜18:00 定休日 / 日曜、年末年始
>物件詳細情報
| 基本情報 | |
|---|---|
| 物件番号 | 69689762366 |
| 店舗形態 | 店舗, 路面店舗, 事務所 |
| オススメ業種 | サービス業, 物販関係, 美容関係, 軽飲食 |
| 物件名 | d_ll(ディール) MATSUYAMA 103 |
| 物件の状態 | 空き |
| 引越し時期 | 即 |
| 契約形態と期間 |
定期契約期間:10年間再契約:不可 |
| 所在地・交通 | |
|---|---|
| 所在地 | 愛媛県松山市本町1-3-4 |
| 交 通1 | 伊予鉄6系統西堀端駅 徒歩3分 |
| 交 通2 | - |
| 賃料 | |
|---|---|
| 賃 料 | 賃料未定 |
| 敷 金 |
敷金未定 |
| その他 | |
|---|---|
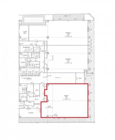
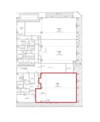
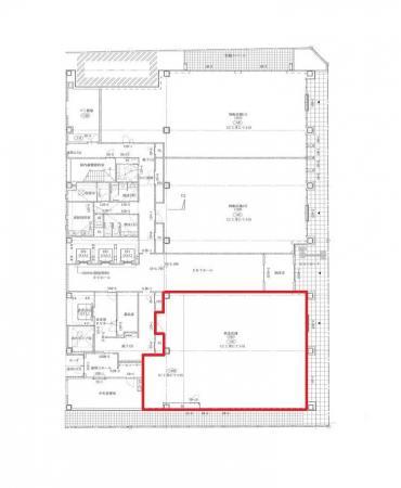
| 備考 | ■家賃保証会社必須です ■業種:都度要確認 ■立体駐車場:相談可 ※243.36㎡を南北に分割相談可(例:南側をフードコート等、北側を別店舗など) |
| 建物 | |
|---|---|
| 建物構造 | その他 |
| 建物階建て |
地上9階 |
| 施工年月 | 2025(令和7)年 08月 |
| 募集物件の階数 | 地上 1階 103号室 |
| 契約面積 | 243.36m2(73.62坪) |
| 用途地域 | 商業地域 |
| 設備 | |
|---|---|
| エレベータ | 有 |
| トイレ | 有/専用 |
| 駐車場 | |
|---|---|
| 状 況 | 無し |
| 取引情報 | |
|---|---|
| 取引態様 | 媒介 |
| 客付 | 不可 |
この物件をチェックした人はこんな物件も見ています
- 2022年4月リノベーション完成!道後地区の1階のテナントです!

愛媛県松山市道後町(1、2丁目)1-4-31
50.08m2(15.15坪)
99,000円(税込)
- 松山市一番町の繁華街にある物件!!

愛媛県松山市二番町1-11/8
270.15m2(81.72坪)
330,000円(税込)
- マンション1階のテナントです!

愛媛県松山市小坂4-6-42
45.13m2(13.65坪)
84,700円(税込)
- 古川西の病院・薬局のあと1階です!近隣にスーパー・ドラッグストアなど集客施設あり!インターへもアクセス便利な立地です!

愛媛県松山市古川西2-3-18
226.80m2(68.61坪)
377,300円(税込)
- 勝山電停そば!大型のオフィスビルです!

愛媛県松山市一番町1-15-2
71.67m2(21.68坪)
賃料未定
今日チェックした物件
- 2025年11月竣工予定の新築物件です!1フロア1テナント!飲食店相談可能!
-

愛媛県松山市二番町3-4-15
95.87m2(29.00坪)
352,000円(税込)
- 広々とした敷地です!大型車両も駐車できます!!
-

愛媛県東温市則之内甲-2163-1
153.60m2(46.46坪)
250,000円(税込)
- 2025年秋完成の新築オフィスビル1階テナントです!西堀端通り沿い!
-

愛媛県松山市本町1-3-4
185.92m2(56.24坪)
賃料未定
- 松山市駅ターミナル至近の1階・2階の一棟貸し店舗です!(定期借家契約です)
-

愛媛県松山市湊町5-4-17
82.50m2(24.96坪)
242,000円(税込)
- 2022年リノベーション済!スモールオフィスにおすすめです!
-

愛媛県松山市萱町2-5-5
17m2(5.14坪)
31,000円(税込)
お急ぎの方はお電話からお気軽にどうぞ!
089-913-2329 営業時間 / 9:00〜18:00 定休日 / 日曜、年末年始


089-913-2329



















089-913-2329