情報更新日:2025年12月12日/広告有効期限:なし
表示閲覧回数(過去30日間):20
お急ぎの方はお電話からお気軽にどうぞ!
089-913-2329 営業時間 / 9:00〜18:00 定休日 / 日曜、年末年始
>物件詳細情報
| 基本情報 | |
|---|---|
| 物件番号 | 69689762381 |
| 店舗形態 | 事務所 |
| オススメ業種 | 事務所 |
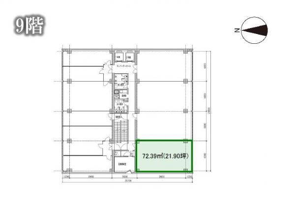
| 物件名 | 松山一番町ビル 9階 21.90坪 |
| 物件の状態 | 空き |
| 引越し時期 | 即 |
| 契約形態と期間 |
普通契約期間:2年間 |
| 所在地・交通 | |
|---|---|
| 所在地 | 愛媛県松山市一番町1-15-2 |
| 交 通1 | 伊予鉄3系統勝山町駅 徒歩2分 |
| 交 通2 | - |
| 賃料 | |
|---|---|
| 賃 料 | 賃料未定 |
| 敷 金 |
10ヶ月 |
| その他 | |
|---|---|
| 備考 | 賃料相談 耐震補強済み 【ビル開閉時間】 正面玄関:月~金・7:30~18:00、土・8:00~18:00、日祝・閉鎖 通用口:月~土・7:00~21:00、日祝・時間外入館方法あり 【駐車場】空台数要確認 機械式:21,000円/台(税別)、平面:1台25,000円/台(税別) |
| 建物 | |
|---|---|
| 建物構造 | 鉄骨鉄筋コンクリート造 |
| 建物階建て |
地上9階 |
| 施工年月 | 1969(昭和44)年 01月 |
| 募集物件の階数 | 地上 9階 |
| 契約面積 | 72.39m2(21.90坪) |
| 用途地域 | 商業地域 |
| 設備 | |
|---|---|
| 水道 | 公営 |
| エレベータ | 有/2基 |
| エアコン | 有り/セントラル(全館) |
| トイレ | 有/共用 |
| 給湯室 | 有/共用 |
| 床仕様 | タイルカーペット |
| セキュリティ | 管理人常駐 |
| 照明設備 | 有 |
| 駐車場 | |
|---|---|
| 状 況 | 空有 |
| 駐車料金 | 27,500円(税込) |
| 取引情報 | |
|---|---|
| 取引態様 | 媒介 |
| 客付 | 不可 |
この物件をチェックした人はこんな物件も見ています
- マンション1階のテナントです!

愛媛県松山市小坂4-6-42
45.13m2(13.65坪)
84,700円(税込)
- 勝山電停そば!大型のオフィスビルです!

愛媛県松山市一番町1-15-2
71.67m2(21.68坪)
賃料未定
- 松山市駅から徒歩2分!内装も綺麗なエステ店跡の2階です!

愛媛県松山市湊町5-3-4
69.45m2(21.01坪)
187,000円(税込)
- 松山市一番町の繁華街にある物件!!

愛媛県松山市二番町1-11/8
270.15m2(81.72坪)
330,000円(税込)
- 住宅街にあるテナント1階です!駐車場1台賃料込み!!

愛媛県松山市石手4-8-11
47.50m2(14.37坪)
77,000円(税込)
今日チェックした物件
- 県道沿い一棟貸テナントです!駐車場15台賃料込!
-

愛媛県松山市空港通(1、2丁目)1-8-28
638.43m2(193.13坪)
770,000円(税込)
- 道路沿い1階テナントです!
-

愛媛県松山市桑原4-10-30
23.18m2(7.01坪)
77,000円(税込)
- 松山市駅徒歩2分の好立地です!オフィス利用にいかがでしょうか。
-

愛媛県松山市湊町5-5-7
185.82m2(56.21坪)
374,000円(税込)
- 事務所仕様のテナントです!
-

愛媛県松山市喜与町1-9-5
74.33m2(22.48坪)
176,000円(税込)
- 市内中心部の好立地のビルです!2階のテナントです!
-

愛媛県松山市花園町5-5
49.58m2(15.00坪)
120,000円(税込)
お急ぎの方はお電話からお気軽にどうぞ!
089-913-2329 営業時間 / 9:00〜18:00 定休日 / 日曜、年末年始


089-913-2329













089-913-2329