情報更新日:2025年06月19日/広告有効期限:なし
表示閲覧回数(過去30日間):16
お急ぎの方はお電話からお気軽にどうぞ!
089-913-2329 営業時間 / 9:00〜18:00 定休日 / 日曜、年末年始
>物件詳細情報
| 基本情報 | |
|---|---|
| 物件番号 | 69689762711 |
| 店舗形態 | 事務所 |
| オススメ業種 | 事務所 |
| 物件名 | ミツワ勝山町ビル 4階B号室 |
| 物件の状態 | 空き |
| 引越し時期 | 相談 |
| 契約形態と期間 |
普通契約期間:2年間 |
| 所在地・交通 | |
|---|---|
| 所在地 | 愛媛県松山市勝山町2-4-7 |
| 交 通1 | 伊予鉄1系統勝山町駅 徒歩2分 |
| 交 通2 | - |
| 賃料 | |
|---|---|
| 賃 料 | 130,480円(税込) |
| 敷 金 |
391,000円 |
| 共益費・管理費 | 16,310円(税込) |
| その他月額費用 1 | ごみ処理費用 2,200円(税込) |
| その他 | |
|---|---|
| 備考 | ・家賃保証会社加入要 ・2年未満解約時、敷金の50%を違約金として差し引きます。 ・駐車場の空き状況は事前にご確認ください。 ・セキュリティはALSOKと直接契約をお願いします。(費用は借主負担) ・光ケーブル引込可 ・24時間使用可 ・出入口開錠時間は、7:30~24:00(日曜閉鎖) ・個別空調(24時間使用可、検針請求) ・清掃は各自テナント様にて対応お願いします。 |
| 建物 | |
|---|---|
| 建物構造 | 鉄骨造 |
| 建物階建て |
地上8階 |
| 施工年月 | 1982(昭和57)年 03月 |
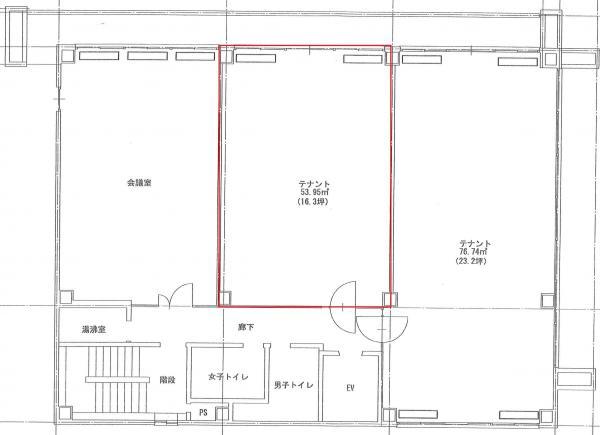
| 募集物件の階数 | 地上 4階 B号室 |
| 契約面積 | 53.95m2(16.32坪) |
| 基準階面積 | 234.90m2(71.06坪) |
| 延床面積 | 1,764.49m2(533.76坪) |
| 天井高 | 2,450mm |
| 用途地域 | 商業地域 |
| 設備 | |
|---|---|
| エレベータ | 有 |
| 床仕様 | Pタイル |
| 駐車場 | |
|---|---|
| 状 況 | 空有 |
| 駐車料金 | 13,200円(税込) |
| 取引情報 | |
|---|---|
| 取引態様 | 媒介 |
| 客付 | 不可 |
この物件をチェックした人はこんな物件も見ています
- 2022年4月リノベーション完成!道後地区の1階のテナントです!

愛媛県松山市道後町(1、2丁目)1-4-31
50.08m2(15.15坪)
99,000円(税込)
- 勝山電停そば!大型のオフィスビルです!

愛媛県松山市一番町1-15-2
71.67m2(21.68坪)
賃料未定
- マンション1階のテナントです!

愛媛県松山市小坂4-6-42
45.13m2(13.65坪)
84,700円(税込)
- 松山市駅から徒歩2分!内装も綺麗なエステ店跡の2階です!

愛媛県松山市湊町5-3-4
69.45m2(21.01坪)
187,000円(税込)
- ローソン市坪北店至近!一棟貸しの事務所付き倉庫です!駐車場5台込み!!

愛媛県松山市市坪北1-14-18
337.79m2(102.18坪)
330,000円(税込)
今日チェックした物件
お急ぎの方はお電話からお気軽にどうぞ!
089-913-2329 営業時間 / 9:00〜18:00 定休日 / 日曜、年末年始


089-913-2329













089-913-2329