情報更新日:2025年11月17日/広告有効期限:なし
表示閲覧回数(過去30日間):29
お急ぎの方はお電話からお気軽にどうぞ!
089-913-2329 営業時間 / 9:00〜18:00 定休日 / 日曜、年末年始
>物件詳細情報
| 基本情報 | |
|---|---|
| 物件番号 | 69689762743 |
| 店舗形態 | 店舗 |
| オススメ業種 | 物販関係 |
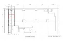
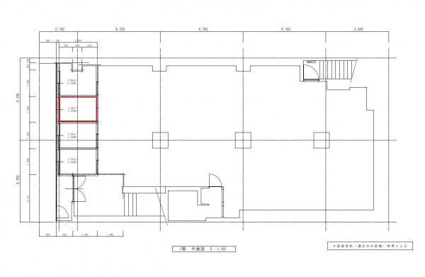
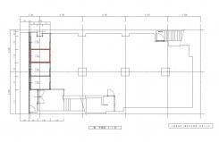
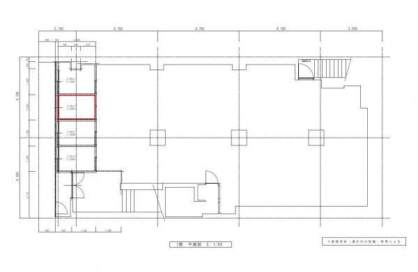
| 物件名 | (仮)ピースポブタカフェ 1階②1.00坪(テイクアウト限定) |
| 物件の状態 | 空き |
| 引越し時期 | 相談 |
| 契約形態と期間 |
定期契約期間:1年間再契約:可 |
| 所在地・交通 | |
|---|---|
| 所在地 | 愛媛県松山市湊町4-6-16 |
| 交 通1 | 高浜・横河原線松山市駅 徒歩3分 |
| 交 通2 | - |
| 賃料 | |
|---|---|
| 賃 料 | 55,000円(税込) |
| 敷 金 |
3ヶ月 |
| 共益費・管理費 | 5,500円(税込) |
| 礼 金 | 1ヶ月 |
| その他 | |
|---|---|
| 備考 | ※本契約は専有面積が無いため、利用規約に基づく契約となります。詳細はお問合せ下さい。 面積:約3.30㎡ 事務手数料:1ヶ月 トイレ:共用(2階) 水道・光熱費は共益費込み 業種:テイクアウト限定(水道、ガスが使用できないため、業種によってはお断りをさせていただく場合がございます。) |
| 建物 | |
|---|---|
| 建物構造 | 鉄筋コンクリート造 |
| 建物階建て |
地上2階 |
| 募集物件の階数 | 地上 1階 ②号室 |
| 契約面積 | 3.30m2(1.00坪) |
| 用途地域 | 商業地域 |
| 設備 | |
|---|---|
| トイレ | 有/共用 |
| 照明設備 | 有 |
| 駐車場 | |
|---|---|
| 状 況 | 無し |
| 取引情報 | |
|---|---|
| 取引態様 | 媒介 |
| 客付 | 不可 |
この物件をチェックした人はこんな物件も見ています
- 松山市一番町の繁華街にある物件!!

愛媛県松山市二番町1-11/8
270.15m2(81.72坪)
330,000円(税込)
- 松山市駅から徒歩2分!内装も綺麗なエステ店跡の2階です!

愛媛県松山市湊町5-3-4
69.45m2(21.01坪)
187,000円(税込)
- 古川西の病院・薬局のあと!近隣にスーパー・ドラッグストアなど集客施設あり!インターへもアクセス便利な立地です!駐車場6台込み!

愛媛県松山市古川西2-3-18
300.10m2(90.78坪)
548,735円(税込)
- マンション1階のテナントです!

愛媛県松山市小坂4-6-42
45.13m2(13.65坪)
84,700円(税込)
- 【R3.11値下げしました!】銀天街アーケード内1階の物販店跡です!(6年の定期借家契約となります)

愛媛県松山市湊町4-9-3
92.40m2(27.95坪)
330,000円(税込)
今日チェックした物件
- 勝山電停そば!大型のオフィスビルです!
-

愛媛県松山市一番町1-15-2
71.67m2(21.68坪)
賃料未定
- 銀天街GET前立地の一棟貸テナントです!(5年間の定期借家契約です)
-

愛媛県松山市湊町3-8-22
89.82m2(27.17坪)
330,000円(税込)
- 古川西の病院・薬局のあと1階です!近隣にスーパー・ドラッグストアなど集客施設あり!インターへもアクセス便利な立地です!
-

愛媛県松山市古川西2-3-18
226.80m2(68.61坪)
377,300円(税込)
- 今治市のショッピングセンター内!飲食店跡!
-

愛媛県今治市東村(丁目)1-14-2
392.69m2(118.79坪)
賃料未定
- 姫原3丁目にある貴重な駐車場物件になります。近隣にある物件の契約が決まるまでの間使用可能です。
-

愛媛県松山市姫原3-5-32
5m2(1.51坪)
11,000円(税込)
お急ぎの方はお電話からお気軽にどうぞ!
089-913-2329 営業時間 / 9:00〜18:00 定休日 / 日曜、年末年始


089-913-2329














089-913-2329