情報更新日:2026年01月13日/広告有効期限:なし
表示閲覧回数(過去30日間):28
お急ぎの方はお電話からお気軽にどうぞ!
089-913-2329 営業時間 / 9:00〜18:00 定休日 / 日曜、年末年始
>物件詳細情報
| 基本情報 | |
|---|---|
| 物件番号 | 69689763030 |
| 店舗形態 | 事務所 |
| オススメ業種 | 事務所 |
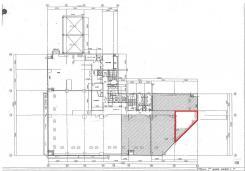
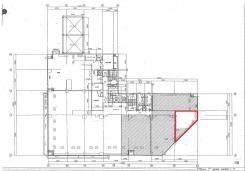
| 物件名 | 愛媛新聞・愛媛電算ビル 3F 13.62坪 |
| 物件の状態 | 空き |
| 引越し時期 | 相談 |
| 契約形態と期間 |
普通契約期間:2年間 |
| 所在地・交通 | |
|---|---|
| 所在地 | 愛媛県松山市大手町1-11-1 |
| 交 通1 | 伊予鉄6系統西堀端駅 徒歩1分 |
| 交 通2 | - |
| 賃料 | |
|---|---|
| 賃 料 | 賃料未定 |
| 敷 金 |
敷金未定 |
| その他 | |
|---|---|
| 備考 | 家賃保証会社への加入必須 賃料・共益費・敷金等賃貸条件は応相談 駐車場:機械式立体駐車場※賃料・空き状況は都度要確認 袖看板:別途契約要・提出料5,500円/月 正面玄関開閉時間:平日・土曜8:00-19:00、日曜閉鎖、祝日8:00-19:00 ※管理事務所の所在時間は正面玄関開放時間と同じ 清掃:清掃会社と別途契約可 セキュリティ:無(機械警備はテナント負担で契約可) 空調料金:検針請求 空調加湿水道料:実費請求(月額数百円程度有) 2年未満で解約の場合、違約金として敷金の50%を償却 |
| 建物 | |
|---|---|
| 建物構造 | 鉄筋コンクリート造 |
| 建物階建て |
地上6階 |
| 施工年月 | 1986(昭和61)年 07月 |
| 募集物件の階数 | 地上 3階 |
| 契約面積 | 45.03m2(13.62坪) |
| 天井高 | 2,500mm |
| 用途地域 | 商業地域 |
| 設備 | |
|---|---|
| 水道 | 公営 |
| 下水道 | 公共下水 |
| エレベータ | 有/2基 |
| エアコン | 有 |
| トイレ | 有/共用 |
| 給湯室 | 有/共用 |
| 床仕様 | Pタイル |
| 利用時間 | 24時間 |
| 照明設備 | 有 |
| 駐車場 | |
|---|---|
| 状 況 | 空有 |
| 取引情報 | |
|---|---|
| 取引態様 | 媒介 |
| 客付 | 不可 |
この物件をチェックした人はこんな物件も見ています
- マンション1階のテナントです!

愛媛県松山市小坂4-6-42
45.13m2(13.65坪)
84,700円(税込)
- 勝山電停そば!大型のオフィスビルです!

愛媛県松山市一番町1-15-2
71.67m2(21.68坪)
賃料未定
- 松山市一番町の繁華街にある物件!!

愛媛県松山市二番町1-11/8
270.15m2(81.72坪)
330,000円(税込)
- 松山市駅から徒歩2分!内装も綺麗なエステ店跡の2階です!

愛媛県松山市湊町5-3-4
69.45m2(21.01坪)
187,000円(税込)
- 住宅街にあるテナント1階です!駐車場1台賃料込み!!

愛媛県松山市石手4-8-11
47.50m2(14.37坪)
77,000円(税込)
今日チェックした物件
お急ぎの方はお電話からお気軽にどうぞ!
089-913-2329 営業時間 / 9:00〜18:00 定休日 / 日曜、年末年始


089-913-2329



















089-913-2329