情報更新日:2026年03月30日/広告有効期限:なし
表示閲覧回数(過去30日間):49
お急ぎの方はお電話からお気軽にどうぞ!
089-913-2329 営業時間 / 9:00〜18:00 定休日 / 日曜、年末年始
>物件詳細情報
| 基本情報 | |
|---|---|
| 物件番号 | 69689763054 |
| 店舗形態 | 店舗, 店舗(飲食店可), 事務所 |
| オススメ業種 | 事務所, 軽飲食, 重飲食, 美容関係 |
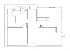
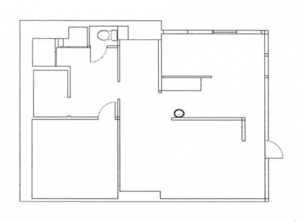
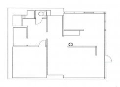
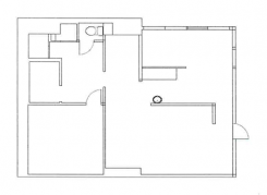
| 物件名 | ●ステラハイツ湯渡 1階 |
| 物件の状態 | 空き |
| 引越し時期 | 即 |
| 契約形態と期間 |
普通契約期間:2年間 |
| 所在地・交通 | |
|---|---|
| 所在地 | 愛媛県松山市湯渡町1-34 |
| 交 通1 | 伊予鉄1系統勝山町駅 徒歩16分 |
| 交 通2 | - |
| 賃料 | |
|---|---|
| 賃 料 | 264,000円(税込) |
| 保証金 | 4ヶ月 |
| 礼 金 | 2ヶ月 |
| その他 | |
|---|---|
| 備考 | 家賃保証会社必須 飲食店可能 駐車場前面2台込み 鍵交換費用:実費 |
| 建物 | |
|---|---|
| 建物構造 | 鉄筋コンクリート造 |
| 建物階建て |
地上5階 |
| 施工年月 | 1995(平成7)年 03月 |
| 募集物件の階数 | 地上 1階 |
| 契約面積 | 80m2(24.20坪) |
| 用途地域 | 近商地域 |
| 設備 | |
|---|---|
| トイレ | 有/専用 |
| 駐車場 | |
|---|---|
| 状 況 | 空有無料 |
| 空き台数 | 2台 |
| 取引情報 | |
|---|---|
| 取引態様 | 媒介 |
| 客付 | 可 |
この物件をチェックした人はこんな物件も見ています
- マンション1階のテナントです!

愛媛県松山市小坂4-6-42
45.13m2(13.65坪)
84,700円(税込)
- 松山市一番町の繁華街にある物件!!

愛媛県松山市二番町1-11/8
270.15m2(81.72坪)
330,000円(税込)
- 勝山電停そば!大型のオフィスビルです!

愛媛県松山市一番町1-15-2
71.67m2(21.68坪)
賃料未定
- 松山市駅から徒歩2分!内装も綺麗なエステ店跡の2階です!

愛媛県松山市湊町5-3-4
69.45m2(21.01坪)
187,000円(税込)
- 住宅街にあるテナント1階です!駐車場1台賃料込み!!

愛媛県松山市石手4-8-11
47.50m2(14.37坪)
77,000円(税込)
今日チェックした物件
お急ぎの方はお電話からお気軽にどうぞ!
089-913-2329 営業時間 / 9:00〜18:00 定休日 / 日曜、年末年始


089-913-2329



















089-913-2329