情報更新日:2026年02月02日/広告有効期限:なし
表示閲覧回数(過去30日間):14
お急ぎの方はお電話からお気軽にどうぞ!
089-913-2329 営業時間 / 9:00〜18:00 定休日 / 日曜、年末年始
>物件詳細情報
| 基本情報 | |
|---|---|
| 物件番号 | 69689763081 |
| 店舗形態 | 事務所 |
| オススメ業種 | 事務所 |
| 物件名 | d_ll(ディール) MATSUYAMA 502 |
| 物件の状態 | 空き |
| 引越し時期 | 相談 |
| 契約形態と期間 |
定期契約期間:10年間再契約:不可 |
| 所在地・交通 | |
|---|---|
| 所在地 | 愛媛県松山市本町1-3-4 |
| 交 通1 | 伊予鉄6系統西堀端駅 徒歩3分 |
| 交 通2 | - |
| 賃料 | |
|---|---|
| 賃 料 | 賃料未定 |
| 敷 金 |
敷金未定 |
| その他 | |
|---|---|
| 備考 | ■家賃保証会社必須です ■業種:都度要確認 ■立体駐車場:相談可 |
| 建物 | |
|---|---|
| 建物構造 | 鉄骨造 |
| 建物階建て |
地上9階 |
| 施工年月 | 2025(令和7)年 08月 |
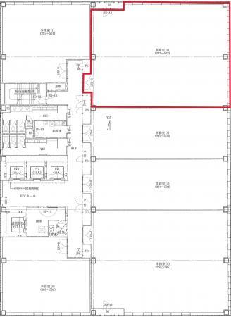
| 募集物件の階数 | 地上 5階 502号室 |
| 契約面積 | 233.64m2(70.68坪) |
| 用途地域 | 商業地域 |
| 設備 | |
|---|---|
| エレベータ | 有 |
| トイレ | 有/専用 |
| 給湯室 | 有/専用 |
| 駐車場 | |
|---|---|
| 状 況 | 無し |
| 取引情報 | |
|---|---|
| 取引態様 | 媒介 |
| 客付 | 不可 |
この物件をチェックした人はこんな物件も見ています
- マンション1階のテナントです!

愛媛県松山市小坂4-6-42
45.13m2(13.65坪)
84,700円(税込)
- 勝山電停そば!大型のオフィスビルです!

愛媛県松山市一番町1-15-2
71.67m2(21.68坪)
賃料未定
- 松山市一番町の繁華街にある物件!!

愛媛県松山市二番町1-11/8
270.15m2(81.72坪)
330,000円(税込)
- 松山市駅から徒歩2分!内装も綺麗なエステ店跡の2階です!

愛媛県松山市湊町5-3-4
69.45m2(21.01坪)
187,000円(税込)
- 住宅街にあるテナント1階です!駐車場1台賃料込み!!

愛媛県松山市石手4-8-11
47.50m2(14.37坪)
77,000円(税込)
今日チェックした物件
- 新空港通り沿いの1階テナントです!
-

愛媛県松山市南江戸町4-3-50
51.34m2(15.53坪)
116,600円(税込)
- 大街道商店街通り沿い!2階のテナントです!
-

愛媛県松山市大街道2-3-1
46.28m2(14.00坪)
165,000円(税込)
- 幹線道路沿いの事務所向け物件です!
-

愛媛県松山市和泉北1-5-3
226.20m2(68.43坪)
220,000円(税込)
- 市内中心部を東西に横断する中ノ川通り沿いの事務所仕様物件
-

愛媛県松山市湊町2-1-7
28.76m2(8.70坪)
41,800円(税込)
- 松山市駅から徒歩2分の好立地!セブンイレブン北隣、開放的な階段を降りた地下1階です!
-

愛媛県松山市湊町5-5-7
157.21m2(47.56坪)
524,040円(税込)
お急ぎの方はお電話からお気軽にどうぞ!
089-913-2329 営業時間 / 9:00〜18:00 定休日 / 日曜、年末年始


089-913-2329



















089-913-2329