情報更新日:2026年03月27日/広告有効期限:なし
表示閲覧回数(過去30日間):1
お急ぎの方はお電話からお気軽にどうぞ!
089-913-2329 営業時間 / 9:00〜18:00 定休日 / 日曜、年末年始
>物件詳細情報
| 基本情報 | |
|---|---|
| 物件番号 | 69689763318 |
| 店舗形態 | 事務所, 店舗, SOHOオフィス, 倉庫 |
| オススメ業種 | 事務所, 美容関係, サービス業, 物販関係 |
| 物件名 | リッツハウス高砂 303号(北) |
| 物件の状態 | 空き |
| 引越し時期 | 即 |
| 契約形態と期間 |
普通契約期間:2年間 |
| 所在地・交通 | |
|---|---|
| 所在地 | 愛媛県松山市高砂町3-10-2 |
| 交 通1 | 伊予鉄1系統木屋町駅 徒歩3分 |
| 交 通2 | - |
| 賃料 | |
|---|---|
| 賃 料 | 11,000円(税込) |
| 敷 金 |
3ヶ月 |
| 共益費・管理費 | 5,500円(税込) |
| その他 | |
|---|---|
| 備考 | 家賃保証会社加入必須です 共用水道費:共益費に込み 鍵交換費用:実費 |
| 建物 | |
|---|---|
| 建物構造 | 鉄筋コンクリート造 |
| 建物階建て |
地上5階 |
| 施工年月 | 1973(昭和48)年 02月 |
| 募集物件の階数 | 地上 3階 303号室 |
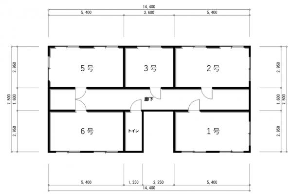
| 契約面積 | 10.62m2(3.21坪) |
| 用途地域 | 近商地域 |
| 設備 | |
|---|---|
| エレベータ | 無 |
| トイレ | 有/共用 |
| 駐車場 | |
|---|---|
| 状 況 | 無し |
| 取引情報 | |
|---|---|
| 取引態様 | 媒介 |
| 客付 | 可 |
この物件をチェックした人はこんな物件も見ています
- 三津浜港近く、沿道沿いビル1階です!

愛媛県松山市三津1-3-22
57m2(17.24坪)
55,000円(税込)
- 銀天街通り沿い1~2階テナントです!

愛媛県松山市湊町4-9-19
47.98m2(14.51坪)
220,000円(税込)
- 交通に便利な中村にあるマンションの1室です!駐車場2台まで可!

愛媛県松山市中村1-1-8
38.76m2(11.72坪)
48,400円(税込)
- フジ本町店近くのコンパクトなテナントです! 事務所・美容系などにオススメ! 洗面台・エアコン(窓用)設置します!

愛媛県松山市高砂町3-10-2
15.93m2(4.82坪)
18,700円(税込)
- フジ本町店近くのコンパクトなテナントです! 倉庫にオススメ! ※3号タイプのみ室内に水道設備がありません。

愛媛県松山市高砂町3-10-2
10.62m2(3.21坪)
11,000円(税込)
今日チェックした物件
お急ぎの方はお電話からお気軽にどうぞ!
089-913-2329 営業時間 / 9:00〜18:00 定休日 / 日曜、年末年始


089-913-2329



















089-913-2329