情報更新日:2026年04月06日/広告有効期限:なし
表示閲覧回数(過去30日間):0
お急ぎの方はお電話からお気軽にどうぞ!
089-913-2329 営業時間 / 9:00〜18:00 定休日 / 日曜、年末年始
>物件詳細情報
| 基本情報 | |
|---|---|
| 物件番号 | 69689763342 |
| 店舗形態 | 事務所 |
| オススメ業種 | 事務所 |
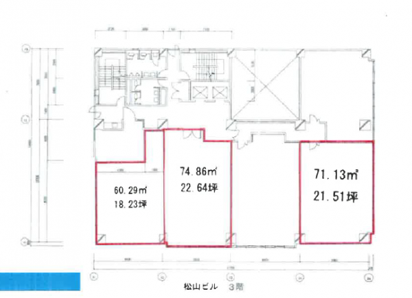
| 物件名 | 大樹生命松山ビル 3階22.64坪 |
| 物件の状態 | 空き |
| 引越し時期 | 即 |
| 契約形態と期間 | |
| 所在地・交通 | |
|---|---|
| 所在地 | 愛媛県松山市一番町4-1-1 |
| 交 通1 | 伊予鉄1系統県庁前駅 徒歩2分 |
| 交 通2 | - |
| 賃料 | |
|---|---|
| 賃 料 | 賃料未定 |
| 敷 金 |
敷金未定 |
| 共益費・管理費 | 76,976円(税込) |
| その他 | |
|---|---|
| 備考 | 家賃保証会社加入要 警備管理(有人+機械警備) 駐車場ー機械式 最大30台 ※空き台数・賃料は都度確認が必要です OA対応可能 |
| 建物 | |
|---|---|
| 建物構造 | 鉄骨鉄筋コンクリート造 |
| 建物階建て |
地上8階 地下1階 |
| 施工年月 | 1984(昭和59)年 01月 |
| 募集物件の階数 | 地上 3階 |
| 契約面積 | 74.84m2(22.64坪) |
| 天井高 | 2,500mm |
| 用途地域 | 商業地域 |
| 設備 | |
|---|---|
| エレベータ | 有/2基 |
| 駐車場 | |
|---|---|
| 状 況 | 空有 |
| 取引情報 | |
|---|---|
| 取引態様 | 媒介 |
| 客付 | 不可 |
この物件をチェックした人はこんな物件も見ています
- 大街道アーケード至近!2階のテナントです!!もと蕎麦屋の居抜き物件です!

愛媛県松山市二番町3-2-10
52.89m2(16.00坪)
123,200円(税込)
- 道後温泉エリアの2棟一括貸テナントです!元画廊跡で駐車場6台込み!!周辺はホテル、旅館、ゲストハウス等が盛業中!

愛媛県松山市道後湯月町-5-28
384.40m2(116.28坪)
459,000円(税込)
- 中央通り沿いの一棟貸テナントです!近隣にマルナカやスターバックスがあります。店舗等での利用はいかがでしょうか。

愛媛県松山市中央1-4-8
390m2(117.98坪)
660,000円(税込)
- 中心地のオフィスビル1階です!

愛媛県松山市一番町4-1-1
63.90m2(19.33坪)
賃料未定
- 小坂交差点すぐそば、環状線沿いの1階テナントです!

愛媛県松山市枝松5-3-31
70.41m2(21.30坪)
164,010円(税込)
今日チェックした物件
お急ぎの方はお電話からお気軽にどうぞ!
089-913-2329 営業時間 / 9:00〜18:00 定休日 / 日曜、年末年始


089-913-2329













089-913-2329