情報更新日:2025年10月20日/広告有効期限:なし
表示閲覧回数(過去30日間):94
お急ぎの方はお電話からお気軽にどうぞ!
089-913-2329 営業時間 / 9:00〜18:00 定休日 / 日曜、年末年始
>物件詳細情報
| 基本情報 | |
|---|---|
| 物件番号 | 69689762134 |
| 店舗形態 | 事務所, 店舗 |
| オススメ業種 | 事務所 |
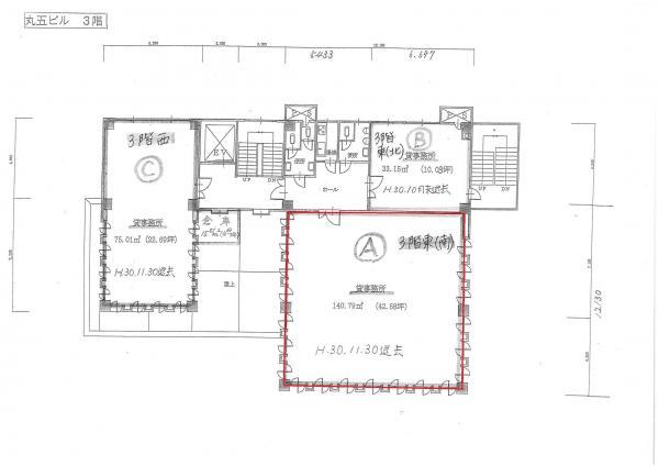
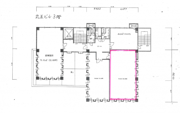
| 物件名 | 丸五ビル 3階東(南) |
| 物件の状態 | 空き |
| 引越し時期 | 即 |
| 契約形態と期間 |
普通 |
| 所在地・交通 | |
|---|---|
| 所在地 | 愛媛県松山市六軒家町-3-24 |
| 交 通1 | 高浜・横河原線衣山駅 徒歩5分 |
| 交 通2 | 伊予鉄道(株)病院前 徒歩1分 |
| 賃料 | |
|---|---|
| 賃 料 | 229,900円(税込) |
| 敷 金 |
689,000円 |
| 共益費・管理費 | 70,000円(税込) |
| その他 | |
|---|---|
| 備考 | 家賃保証会社加入要 ゴミ処理費用:共益費込 袖看板掲示費用は入居者負担(希望者のみ) セキュリティ:各部屋セコム機械警備 玄関ドア:オートロック式 エントランス:防犯カメラ設置 駐車料金:8,250円(税込)/台 ※空き台数都度要確認 飲食店:不可 水道(ガス):込み |
| 建物 | |
|---|---|
| 建物構造 | 鉄筋コンクリート造 |
| 建物階建て |
地上6階 |
| 施工年月 | 1974(昭和49)年 08月 |
| 募集物件の階数 | 地上 3階 東(南)号室 |
| 契約面積 | 140.79m2(42.59坪) |
| 用途地域 | 準工業 |
| 設備 | |
|---|---|
| 水道 | 公営 |
| ガス | LPG |
| エレベータ | 有 |
| エアコン | 有り/個別 |
| トイレ | 有/共用 |
| 給湯室 | 有/共用 |
| セキュリティ | 機械警備 |
| 照明設備 | 有 |
| 駐車場 | |
|---|---|
| 状 況 | 空有 |
| 駐車料金 | 8,250円(税込) |
| 取引情報 | |
|---|---|
| 取引態様 | 媒介 |
| 客付 | 可 |
この物件をチェックした人はこんな物件も見ています
- 2025年1月リフォーム完成!松山労働総合庁舎隣接、ダイキ美沢店目の前のオフィスビル1階です!

愛媛県松山市六軒家町-3-24
76.79m2(23.23坪)
160,000円(税込)
- 松山市一番町の繁華街にある物件!!

愛媛県松山市二番町1-11/8
270.15m2(81.72坪)
330,000円(税込)
- 道後温泉本館・子規記念博物館を結ぶ道沿いにある希少物件です!

愛媛県松山市道後湯之町-6-27
137.50m2(41.59坪)
781,000円(税込)
- 松山市駅から徒歩2分!内装も綺麗なエステ店跡の2階です!

愛媛県松山市湊町5-3-4
69.45m2(21.01坪)
187,000円(税込)
- 古川西の病院・薬局のあと!近隣にスーパー・ドラッグストアなど集客施設あり!インターへもアクセス便利な立地です!駐車場6台込み!

愛媛県松山市古川西2-3-18
300.10m2(90.78坪)
548,735円(税込)
今日チェックした物件
お急ぎの方はお電話からお気軽にどうぞ!
089-913-2329 営業時間 / 9:00〜18:00 定休日 / 日曜、年末年始


089-913-2329



















089-913-2329